Essa é a Iara e sua família. Iara é uma jovem de 23 anos, casada com o Wemerson (37 anos) e, recentemente, se tornaram pais de uma linda bebê chamada Helena! Eles vivem na Comunidade de Nova Viçosa, na cidade de Viçosa, em uma casa simples, próxima dos familiares e amigos. A casa em que moram é pequena, com diversos problemas e várias condições precárias. Eles merecem muito mais, mas não têm os recursos para transformar essa realidade.
Por isso, ao entender as necessidades da família, arregaçamos as mangas e colocamos a mão na massa! É para isso que estamos aqui: para ajudar famílias como a de Iara a conquistarem um lar digno e seguro!
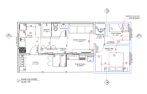
No novo projeto que fizemos, foi possível criar um quarto novo para o conforto do casal, um quartinho para a Helena tanto para hoje quanto para o seu crescimento, além de uma reforma linda para o banheiro, a cozinha e, com a expansão dos quartos, a criação de uma sala de estar/jantar para a família! Além disso tudo, a varanda também passou a contar com uma área de serviço e um fogão a lenha que a família amou! Com esse projeto, foi possível qualificar a casa em questões de segurança e conforto, como na reforma do telhado, e também tornar o espaço mais confortável pro proveito de todos! Com isso tudo, nós conseguimos realizar o sonho da família de ter um projeto que vai melhorar tanto a qualidade de vida deles, e agora só precisamos da sua ajuda!




















